21c Museum Hotel St Louis

Building Architecture- Large Scale (>10,000 sf)

© Michael Robinson Photography

Project Narrative

The 21c St Louis converted the historic downtown St Louis YMCA into a hybrid program of a public art museum and boutique hotel. The design retained the most significant historic features of the original building and added playful new spaces and programming to bring life back into the 100+ year old structure.

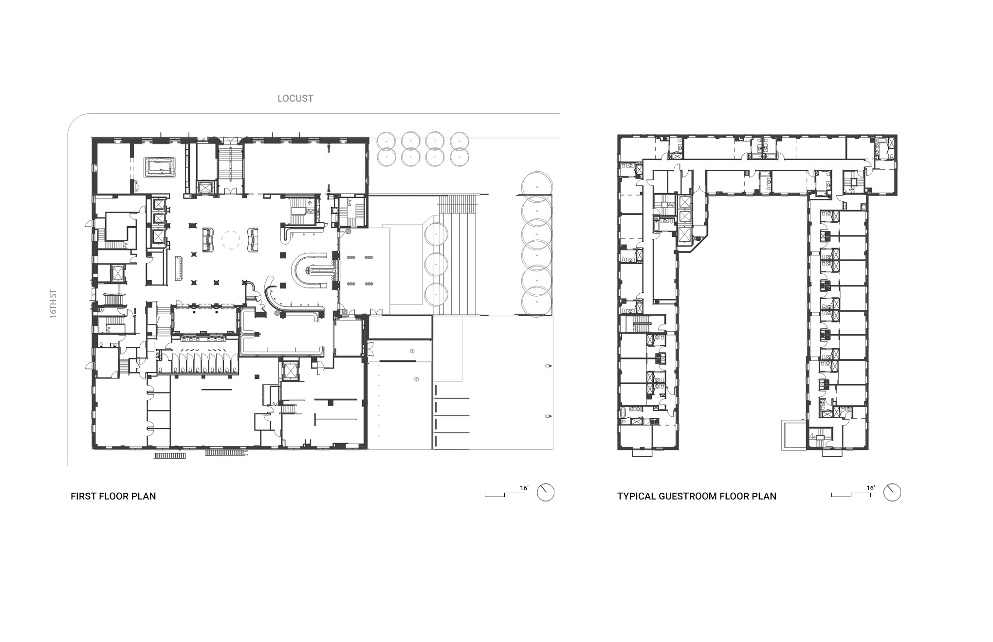
The 21c museum hotel is an innovative hospitality brand that blends art with hospitality. The project brief was to honor the history of the building while creating new spaces for the brand’s unique programming. Building on the idiosyncrasies of the YMCA model, the design team used a colorful and playful approach to create new spaces that merged with the old: spaces for sports were adapted to assembly areas, floors were removed to bring in light, guestrooms were flipped on end to work with the narrow footprint, a new Spanish-themed restaurant riffed on the original architectural style, and a multipurpose patio was built to the south to allow the hotel to spill out into the neighborhood. No two floors are the same and no two guestrooms are the same, making the building a truly unique experience.

The project demanded creative thinking from all members of the design team at all phases. The non-repetitive floor plates of the original design combined with the loose tolerances of the original concrete and masonry high-rise construction resulted in challenges in nearly every space. Fitting the program and building systems into the existing building shell required removal of several half-levels. The retention of the historic pool and public lobbies demanded creative new construction techniques partnered with the skill of traditional craftsman. Custom glazes were developed to match the original tile, plaster details were replicated, and original wood gym floors and basket weave tile flooring were meticulously restored. The team employed VDC technologies to make adjustments on the fly and make sure all the new building systems fit seamlessly in the historic shell.

The mission of this project is to use hospitality as a force for good. The property had recently vacated by the YMCA and was in poor overall condition in a desolate part of downtown St Louis. The building envelope was failing, many of the historic features we covered or lost over time, and the building was likely on track to become just another surface parking lot. The renovation of this structure was an act of hope and a gift to the future rediscovery of urban St Louis. The 21c St Louis purposefully echoes the rich history of the YMCA building type, perhaps the first truly mixed-used American building type, through playful reinterpretation of history and program. What was old is new again. Residents and guests can once again swim in the historic pool, play pool in the billiards room, interact with art in the galleries, and enjoy the vibrant life of a building once on the edge of disappearance.

                 

© 21c Museum Hotels

 

© Michael Robinson Photography

 

© Michael Robinson Photography

 

© Michael Robinson Photography

 

© Michael Robinson Photography

 

© Michael Robinson Photography

 

© Michael Robinson Photography

 

© Michael Robinson Photography

 

© 21c Museum Hotels

 

© 21c Museum Hotel

 

© PWWG Architects

 

© PWWG Architects

 

© PWWG Architects

 

Project Details -

Submission Category

Building Architecture- Large Scale (>10,000 sf)

Date of Completion

June, 2024

Submitting Firm Name

PWWG Architects


Project Team

Landscape Architect

DG2

Architect

PWWG Architects

Interior Designer

Hufft (Public Spaces); Bill Rooney Studios (Guestrooms)

Other Project Team Members

Pool Consultant - Westport Pools; Food Service - MFI; Historic - Rosin Preservation; Lighting - Charter Sills; Vertical Transportation - VDA; Facades - WJE;

Structural Engineer

KPFF

MEP Engineer

IMEG

Civil Engineer

IMEG

Contractor

Russell