Richard King Mellon Foundation Headquarters

Building Architecture- Large Scale (>10,000 sf)

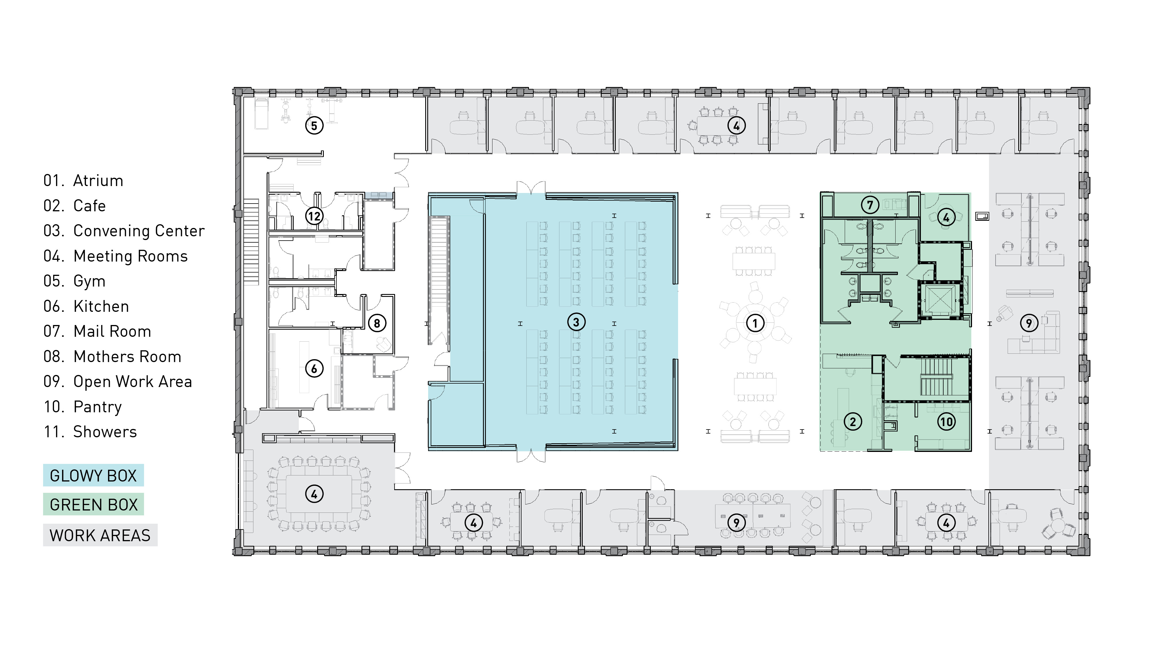
Project Narrative

This adaptive reuse workplace renovation created the new headquarters for the Richard King Mellon Foundation at the LEED Silver certified Auction House in Pittsburgh’s Strip District Terminal.

Key challenges and solutions:
- Balance intimate workspace & supporting large gatherings
- The Green Box and the Glowy Box act as two bookends to organize the space and break down its scale by creating boundaries for the café/lounge and the workspaces. These two core masses represent the dichotomy of Richard King Mellon Foundation's mission; grounded and tangible while also being visionary and full of possibility. The Green Box houses core elements (the elevator, bathrooms, and other essential structures). Inside the Glowy Box is Richard King Mellon Foundation's convening center to celebrate grantees through a custom wall mosaic (which can be updated over time) representing the 2,000 organizations Richard King Mellon Foundation has helped throughout its 75-year history. As this space is utilized to award grantees - its central location acts as a reminder to all of the mission of the foundation — keeping it as a core focus.

Demonstrate client’s commitment to conservation
LED lighting, FSC certified wood, and natural materials like stone and felt are used throughout. Eco-friendly insulation added R-17 to existing walls. A 16’ tree in the atrium is surrounded by a four-sided bench representing the four branches of the Mellon family. Custom wallcovering illustrations represent pillars of RKMF’s mission including: conservation, economic development, economic mobility, and health & well-being.

Support employee health and well-being
Operable windows, employee showers, Mother’s Room, fitness room, protected bike storage, and café encourage movement, fresh air, choice, nourishment and hydration. 20 Health Product Declarations and 20 Environmental Product Declarations were reviewed as part of the material specification process to select the healthiest, most sustainable options. Acoustic comfort is enhanced by the “slat clouds” in the ceiling. Private offices wrap the social hub in the center and use a continuous wall of interior glass to extend natural light and views deep into the space’s interior.

Create welcome and belonging for Richard King Mellon Foundation's diverse community
The space celebrates Pittsburgh’s artists and makers; and incorporates key elements of Richard King Mellon Foundation's recent rebranding, including new logo and brand colors. It’s an intentional departure from the clubby, exclusive feel of their former space.

                 
 
 
 
 
 
 
 
 
 
 
 
 
 

Project Details -

Submission Category

Building Architecture- Large Scale (>10,000 sf)

Date of Completion

April, 2024

Submitting Firm Name

GBBN


Project Team

Urban Planner

N/A

Landscape Architect

N/A

Architect

GBBN

Interior Designer

GBBN

Environmental Designer

GBBN

Other Project Team Members

Monmade; evolveE/A

Structural Engineer

TranSystems

MEP Engineer

Karpinski Engineering

Civil Engineer

N/A

Contractor

PJ Dick